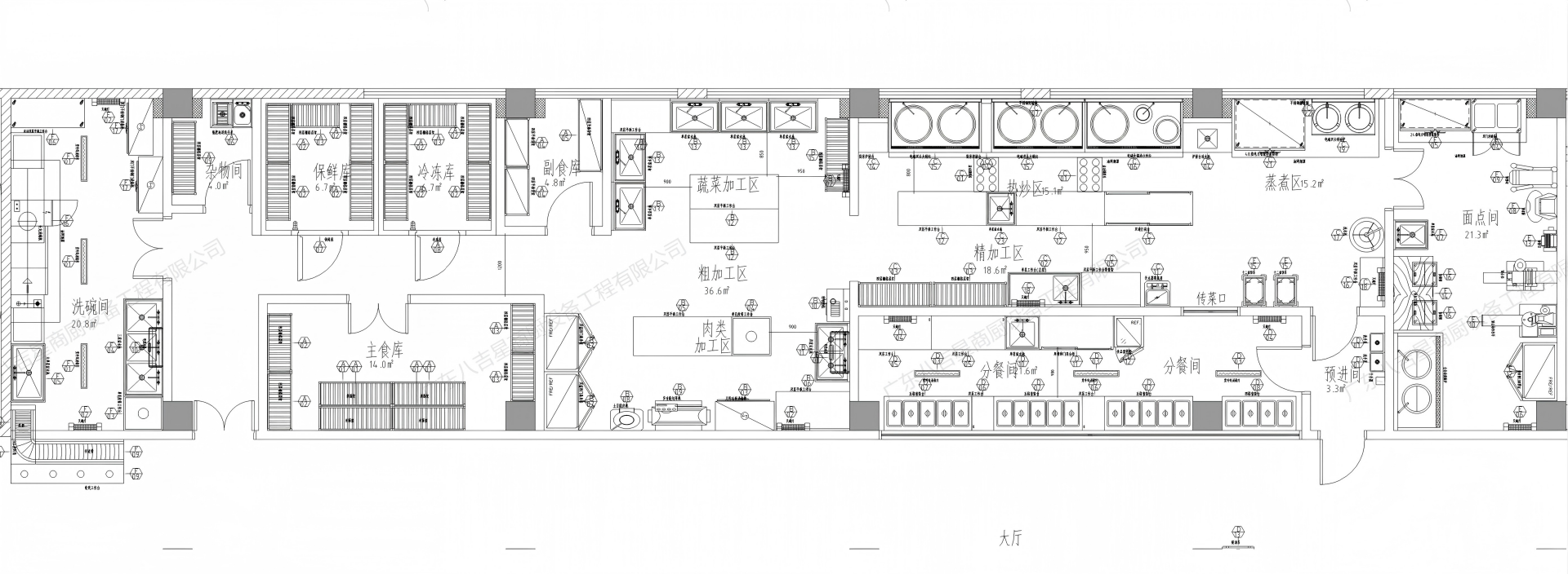
矿业企业的餐饮需求向来极具特殊性,汉源盛屯锌锗的生产车间实行三班倒制度,职工就餐时间分散且集中,同时园区推行严格的绿色循环生产标准,食堂排放与能耗控制需与产业环保要求同步;更关键的是,一线矿工体力消耗大,对菜品温度、营养均衡度要求远高于普通餐饮场景。
.png)
驰能商厨用定制化解决方案证明:专业的商厨服务不仅是设备交付,更是对行业需求的深度解读与精准响应,“科技改变厨房,品质成就未来” 的理念,在汉源深山的矿山食堂中得到了最生动的诠释。




驰能商厨能为食堂、连锁餐饮、酒店、中央厨房等提供整体解决方案,包括厨房设计、施工、设备配套及售后服务,欢迎来电来函咨询。




